Filtre na dažďovú vodu AS-PLURAFIT

Filtre na dažďovú vodu AS-PLURAFIT zaisťujú čistenie dažďovej vody od hrubých nečistôt. Filtre sú určené na inštaláciu ako do nádrží na dažďovú vodu, tak aj do terénu pred akumulačnú nádrž.

AS-PLURAFIT PR

Filter AS-PLURAFIT PRO je samostatná filtračná šachta s filtračným košom určená na umiestnenie do zeme pred nádrž na dažďovú vodu. Napája sa medzi odkvapový zvod a nádrž. Možnosť rozšírenia predlžovacími nástavcami.

Obsahuje: veko, základná časť, filtračné kôš, nadstavec, odtokové dno, záslepka

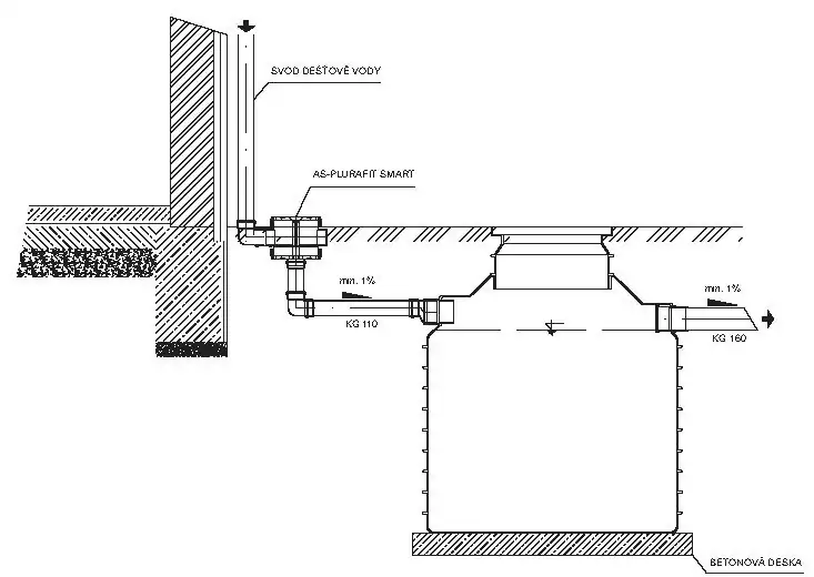
Filter AS-PLURAFIT SMART

Filter AS-PLURAFIT SMART je samostatná filtračná šachta s filtračným sitom určená na umiestnenie do zeme pred nádrž na dažďovú vodu. Napája sa medzi odkvapový zvod a nádrž. Možnosť rozšírenia predlžovacími nástavcami.

Obsahuje: veko, základná časť, filtračné sito, odtokové dno, záslepka

FILTRAČNÝ SET AS-PLURAFIT EASY

Filter AS-PLURAFIT EASY je určený na umiestnenie do nádrže na dažďovú vodu. Jedná sa o zjednodušenú variantu filtra skladajúci sa len zo základnej časti a filtračného koša.

Obsahuje: základná časť, filtračný kôš

AS-PLURAFIT BASIC

Filter AS-PLURAFIT BASIC je určený na umiestnenie do nádrže na dažďovú vodu.

Obsahuje: základná časť, filtračné kôš, nadstavec, odtokové dno, záslepka